Open Source - School of Architecture of Nanterre
Nanterre
- France
Date
2019
-
2023
Client
Eiffage Real Estate
Architect
IT's
RFR’s assignments
RFR's scope includes the technical design, site supervision and BIM modelling for all structures, façades and ETFE canopies
Floor area
18 000 m2
Façade area
approximatively 7000 m2
Description
This project covers the rehabilitation of the former Nanterre School of Architecture and its extension with the creation of five-story buildings.
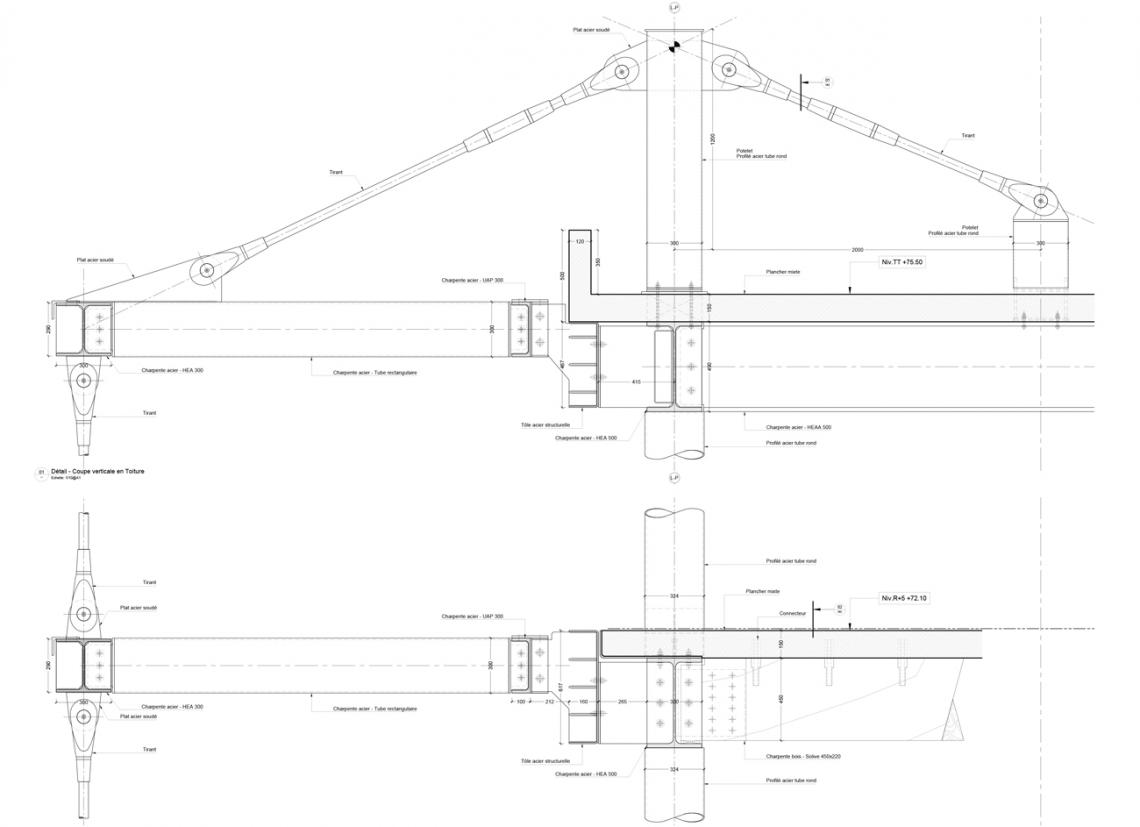
RFR Structure & Envelope is in charge of the structural design for the entire project. That includes the new buildings, but also that the existing one, whose structure needs to be reinforced to support the new areas and to adapt it to the new building program. The entire project is divided into two main structural typologies: the existing building is composed of a steel frame associated with concrete slabs, while the extension uses composite wood-concrete slabs also supported by a steel frame.
RFR's scope also includes the rehabilitation of all existing facades as well as the design of the new ones. On the rehabilitated part, the façade was replaced by a semi-curtain system composed of aluminum joinery, and incorporating smoke extraction and comfort vents. The new buildings will have wood-frame walls and semi-curtain façades in glazed parts. On the upper floors, vertical bamboo sunshades were optimized for solar protection, by their geometry and molding.
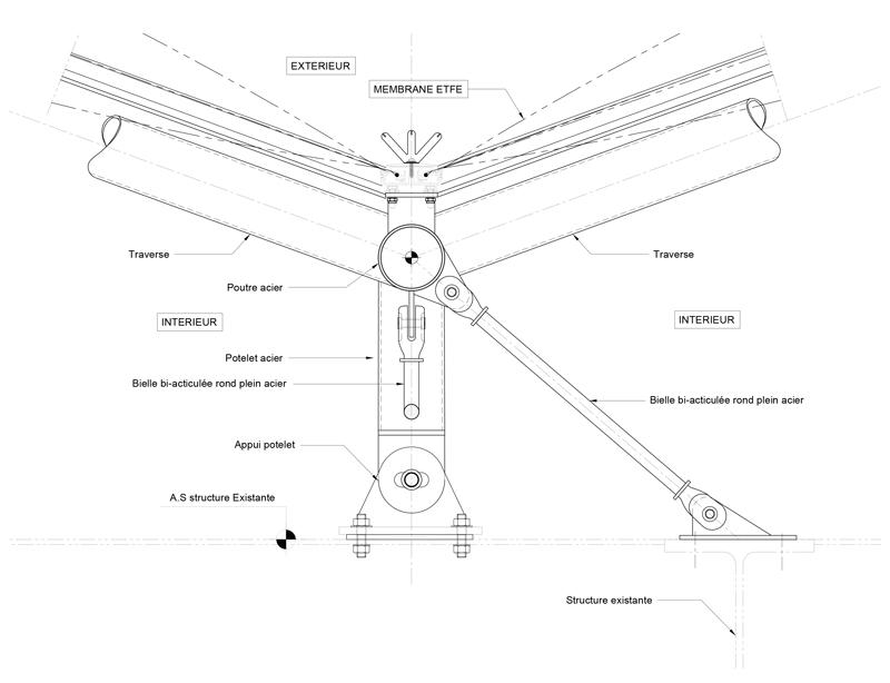
The project also includes two ETFE canopies (respectively 600 and 100 m²). RFR studies have made it possible to produce these canopies with a very flat geometry so as not to disrupt the use of the outdoor area in which they are inscribed. To differentiate from the sharp-edged structure of the Kalisz project, a tubular structure was chosen.
RFR Structure & Envelope is in charge of the structural design for the entire project. That includes the new buildings, but also that the existing one, whose structure needs to be reinforced to support the new areas and to adapt it to the new building program. The entire project is divided into two main structural typologies: the existing building is composed of a steel frame associated with concrete slabs, while the extension uses composite wood-concrete slabs also supported by a steel frame.
RFR's scope also includes the rehabilitation of all existing facades as well as the design of the new ones. On the rehabilitated part, the façade was replaced by a semi-curtain system composed of aluminum joinery, and incorporating smoke extraction and comfort vents. The new buildings will have wood-frame walls and semi-curtain façades in glazed parts. On the upper floors, vertical bamboo sunshades were optimized for solar protection, by their geometry and molding.
The project also includes two ETFE canopies (respectively 600 and 100 m²). RFR studies have made it possible to produce these canopies with a very flat geometry so as not to disrupt the use of the outdoor area in which they are inscribed. To differentiate from the sharp-edged structure of the Kalisz project, a tubular structure was chosen.
The Nanterre School of Architecture was built in 1974 by the architect Kalisz to house the new architectural teaching unit of the School of Fine Arts. Following the transfer of its activity, the building was abandoned.
RFR won this project as part of the "Inventons la métropole de Paris" competition.